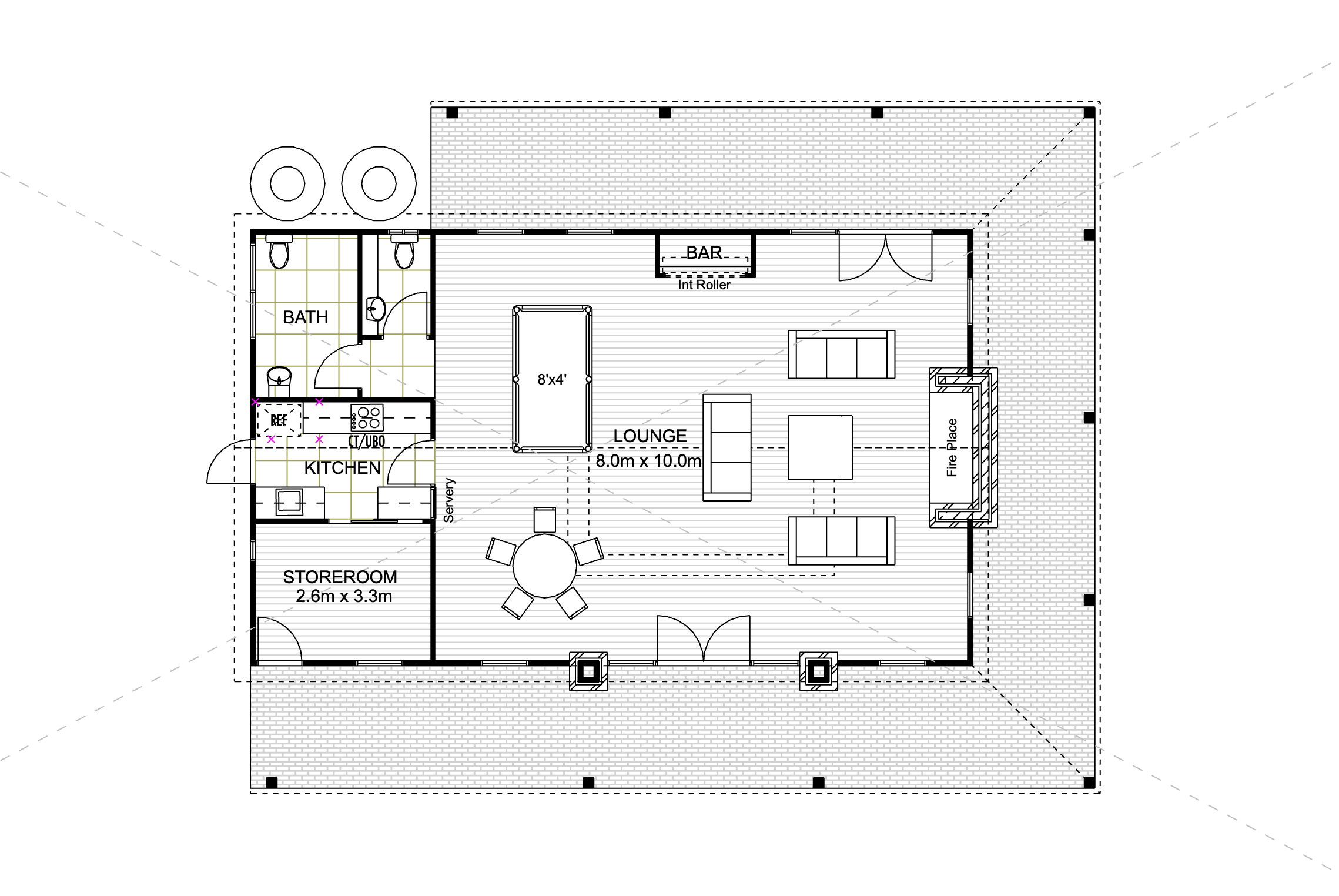
Conondale Recreation Hall
The Recreation Hall will form the centre piece of this large eco cabin resort in Conondale. It is intended to provide a relaxing meeting place for guests staying in the 8 cabins located around the 110 acre site. A large lounge area is focussed about a central rock clad fireplace with additional space for dining, pool table, kitchen, store and bath. The facade reflects the surrounding environs and complements the eco cabins.
Street Facade 1
Ground Floor
Street Facade 2
Street Facade 3
