Maleny Townhouses Stage 2
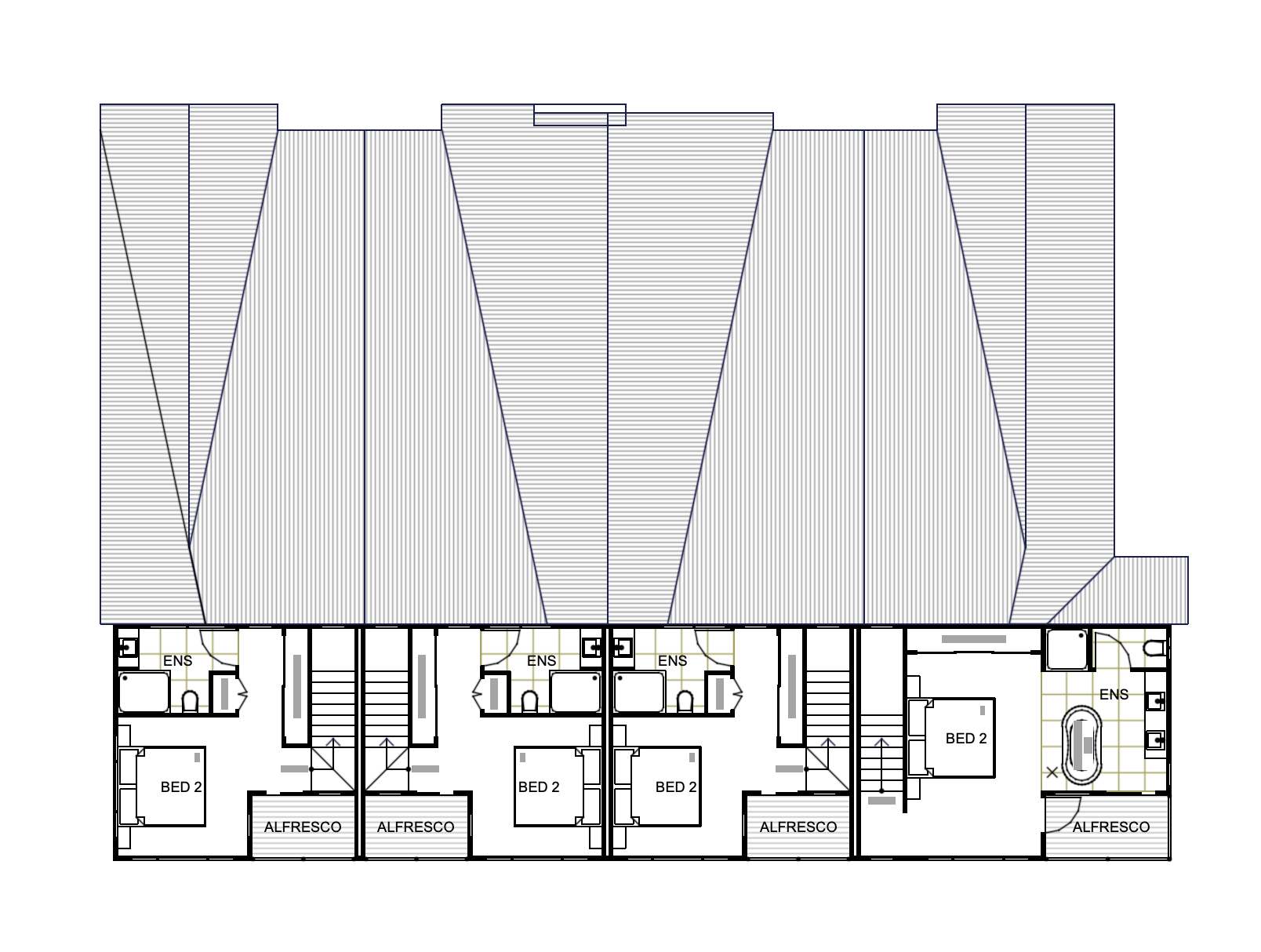
Currently undergoing development application, these 4, split level units, will begin construction as stage 1 completes. The site, just off Maple St in downtown Maleny, will provide seamless access to all the attractions Maleny offers. Stage 2 will comprise 4 x split level units, each with 2 bedrooms, 2 bathrooms and parking for 2 cars. A large northeast facing covered alfresco area will provide for year round outdoor entertaining. Stage 2 townhouses will feature a pneumatic vacuum elevator linking the ground floor entry with the first floor living and bedroom. These elevators can be fitted at the time of construction or retrofitted when required. Presales and marketing will be by Wiren Boutique in conjunction with Salty Babe developments. If you are interested in purchasing or having a similar design undertaken for you next development please get in touch.
Ground Floor Entry
First Floor
Second Floor
