Peregian Duplex
Designed for an older couple looking to resettle with a passive income, this duplex faces north to the street and east to a lovely park.
Unit 1 is single level and ideal for those wanting to avoid stairs. It incorporates a clerestory roof allowing northerly light into the living areas and capitalizes on its park side location.
The third bedroom also functions well as a multipurpose room with good separation of the living areas.
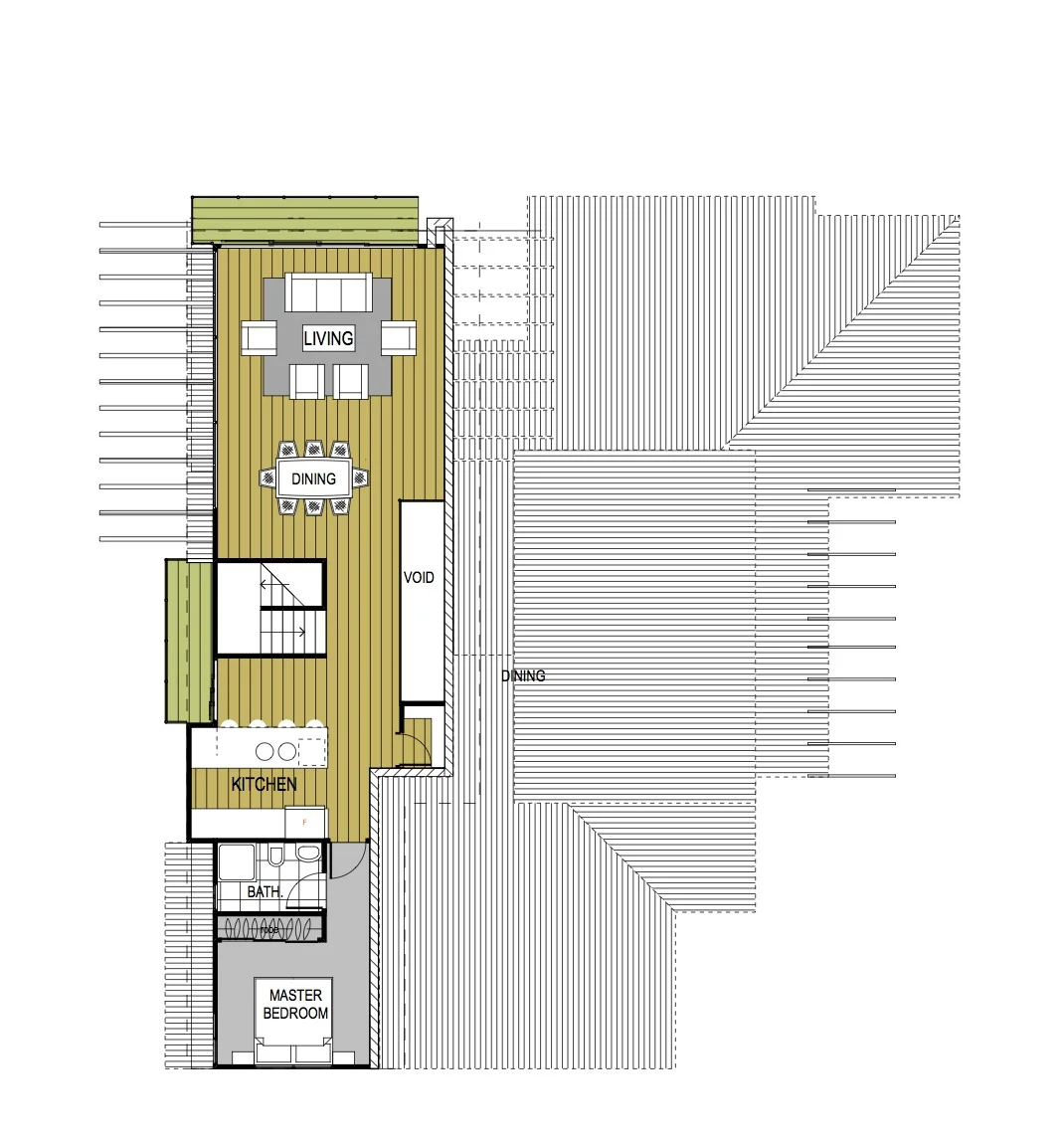
Unit 2, which is 2 level and designed to be rented, has a large living and dining area to the north and a central void to connect the upper and lower levels.
