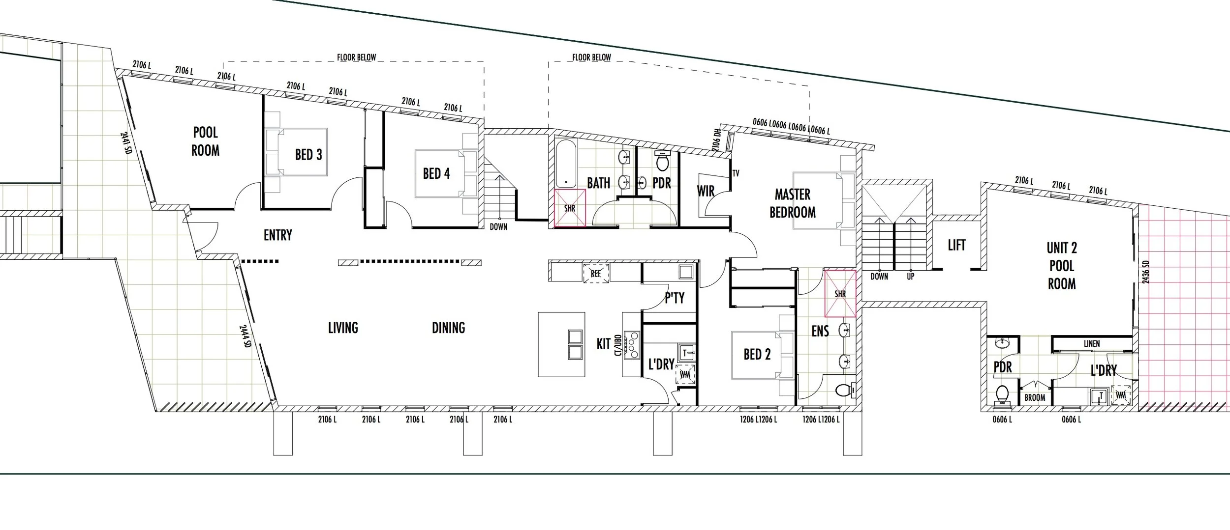
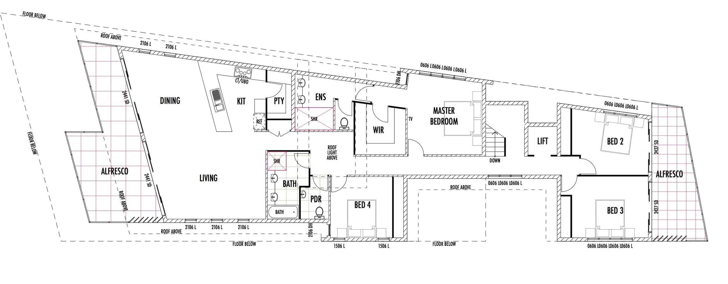
Bradman Units
These 2 high-end units were designed for a small site overlooking the Maroochy River.
Employing semi subterranean garaging, open plan living areas, private pools and spacious master suites these 2 units make the most of the awesome views.
Unit 1 can be accessed from the street level or from the garage and seamlessly blends swimming pool and outdoor entertaining with lounge, dining and kitchen.
Unit 2 piggybacks over unit 1 with basement garage, private ground floor pool and poolroom and upper level living. Again a large outdoor entertaining area flows easily into the open plan living creating a spacious expanse and capitalizing on the riverfront aspect.
Upper Ground
First Floor
